EN DE PL

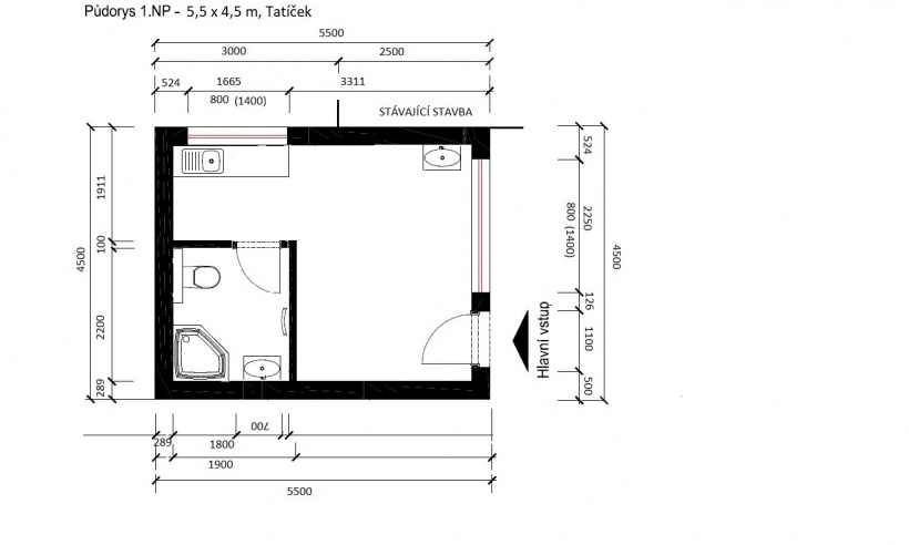
Přístavba k domu, velikost 5,5 x 4,5 metru

Modulární dům atypické velikosti 5,5 x 4,5 metru. Tento domek je řešen jako přístavba k stávající dřevostavbě. Celá kompozice je obložena pomocí palubek. Interiér obsahuje podlahové vytápění pod velkoformátouvou dlažbou, vybavenou koupelnu a malou kuchyňskou linku. Umyvadlo v místnosti je na přání zákazníka.

Máte zájem o podobný modul?

Poznámka:

 Souhlasím, že provozovatel webu hutchhouse.cz je oprávněn v souladu s příslušnými obecně platnými právními předpisy, zejména se Zákonem č. 101/2000 Sb. o ochraně osobních údajů zpracovat a uchovat veškeré informace a údaje po dobu nejvýše jednoho roku, které jí pro účely zpracování poptávky poskytuji.